Immobilienangebote

Das GROSSE Reihenhaus in Meckenheim ! Wohnfläche fast 190 m² ...

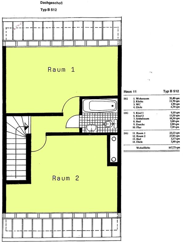
Hier haben Sie endlich mal den Platz den sie sich wünschen ! Auf über 190 m² Nutzfläche können Sie großzügig wohnen oder auch teilweise arbeiten. Denn die 5 Schlaf- bzw. [...]



 
DJI_20220505_185646_107DJI_20220505_190334_136DJI_20220505_190421_958DJI_20220505_190404_258Schlafzimmer OGSchlafzimmer OG1 von 5 BadezimmernDachgeschossDachgeschossGrundriss EGGrundriss 1 OGGrundriss DachgeschossGrundriss Keller

Anfrage

Kontakt

Josef K. Ach
Immobilienmakler

Ihr Ansprechpartner

Philippe Drees

02234 - 95317-26

Anfrage

 
 
 

Firmengruppe Ach
Internet: http://www.ach-immobilien.de
E-Mail: info@ach-immobilien.de