ACH, Josef K. Immobilienmakler IVD seit 1953

Anspr. Philippe Drees
0 22 34 - 9 53 17-26

Kölner Str 67
50226 Frechen

www.ach-immobilien.de

Drucken

Das GROSSE Reihenhaus in Meckenheim ! Wohnfläche fast 190 m² ...

Hier haben Sie endlich mal den Platz den sie sich wünschen ! Auf über 190 m² Nutzfläche können Sie großzügig wohnen oder auch teilweise arbeiten. Denn die 5 Schlaf- bzw. [...]

DJI_20220505_185646_107

DJI_20220505_185646_107

Objekt-Nr: 6022

Preise

365.000,00 EUR

Courtage

3,57 %

Flchen

168 m²

190 m²

200 m²

Ausstattung

3

2

5

1

6

Dusche, Wanne

1983

Elektro

1

2018-09-26

Verbrauch

26.09.2028

2014

Strom

85

Ja

Ja

1

7.500,00 EUR

Tiefgarage

Ja

nach Vereinbarung

gepflegt

Lagebeschreibung

Die nähe zu Rheinbach und nach Bonn zeichnen diese Lage aus.

Der Autobahnanschluß nach Bonn und Rheinbach ( A 555 / A 61 ) liegt ca. 3 Fahrminuten entfernt.
Einkaufsmöglichkeiten, Ärzte und Banken sind in unmittelbarer Nähe vorhanden.
In Alt-Meckenheim finden Sie alle Annehmlichkeiten des täglichen Bedarfs in nur wenigen Fahrminuten entfernt. Hier finden Sie auch einen Bahnhof mit entsprechenden Anbindungen.

Kindergärten und Schulen sind ebenfalls gut zu erreichen.

Objektbeschreibung

Hier haben Sie endlich mal den Platz den sie sich wünschen !

Auf über 190 m² Nutzfläche können Sie großzügig wohnen oder auch teilweise arbeiten.
Denn die 5 Schlaf- bzw. Multifunktionsräume ermöglichen unterschiedliche Nutzungen.

Außerden verfügt das 2-geschossige zeitlos verklinkerte Gebäude über einen Sanitärbereich pro Wohnebene. Somit insgesamt 3 Bäder.

Trotz der Größe des 2-seitig angebauten Hauses müssen Sie keinen großen Garten pflegen, denn hier hat man nur eine gemütliche Erdgeschoss-Terrasse zur Nutzung .

In dem Haus wurden die Fußbodenbeläge erneuert. Der Stromanbieter verlangt bei einer 4-Köpfigen Belegung des Hauses eine monatliche Abstandszahlung für Allgemeinstrom und Nachtstrom beträgt € 185,--/ Monat

Ausstattung

Das Reihenhaus ist in einem sehr gepflegten Zustand mit weißem Rauhfaser-Anstrich und durchgehend neuwertigen einheitlichem Vinylboden.

Alle Bäder sind raumhoch gefliest und in einem gepflegtem Zustand.

Die Beheizung erfolgt über eine eigene Etagenheizung.

Alle Ausstattungsdetails zusammengefasst:

- schöne und ruhige Terrasse
- gepflegter Zustand
- Kunststofffenster mit Iso-Verglasung
- eigener Kelleraum
- Waschraum im Keller
- bezugsfrei
- sehr hell
- ausgebauter Keller
- ausgebauetes Dachgeschoss mit Wannenbad
- insg. 1 G-WC, 1 Duschbad und 2 Wannenbäder
- 5 Schlafzimmer

Sonstiges

------------------------------------------------------------------------------------
Daten aus dem Energieausweis:

Energieausweis gültig bis: 26.09.2028
wesentlicher Energieträger: Strom
Energieverbrauchskennwert: 85 kWh/(m²*a)

---------------------------------------------------------------------------------------

Interresse ? Anruf genügt ! Tel: 022 34 / 9 53 17 - 0

www.ach-immobilien.de - Immobilienmakler seit 1953


Die Stromvorauszahlungen betragen lt. Stadtwerken € 185,-- für den Nachtstrom und Normalstrom.

Bilder

DJI_20220505_190334_136

DJI_20220505_190334_136

DJI_20220505_190421_958

DJI_20220505_190421_958

DJI_20220505_190404_258

DJI_20220505_190404_258

Schlafzimmer OG

Schlafzimmer OG

Schlafzimmer OG

Schlafzimmer OG

1 von 4 Badezimmern

1 von 4 Badezimmern

Dachgeschoss

Dachgeschoss

Dachgeschoss

Dachgeschoss

Grundriss EG

Grundriss EG

Grundriss 1 OG

Grundriss 1 OG

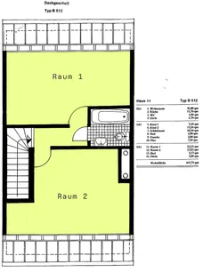
Grundriss Dachgeschoss

Grundriss Dachgeschoss

Grundriss Keller

Grundriss Keller