ACH, Josef K. Immobilienmakler IVD seit 1953

Anspr. Holger Kümmel
02234 - 95317-25

Kölner Str 67
50226 Frechen

www.ach-immobilien.de

Drucken

Frechen: 2 Dachwohnungen in einer ! 50 + 35 m² ...

Die angebotene Wohnung befindet sich im Dachgeschoss ( 4.OG mit Aufzug ) eines äußerst gepflegten Objektes in Frechen-City. Die praktikabel aufgeteilte 3-Raum-Wohnung zeichnet sich dadurch aus, dass es sich [...]

IMG_2386.jpeg

IMG_2386.jpeg

Objekt-Nr: 6005

Preise

279.000,00 EUR

566,00 EUR

Courtage

3,57 %

Flchen

85 m²

94 m²

8 m²

Ausstattung

2

1

4

2

2

3

Wanne

1991

Gas

Fliesen

2018-06-11

Verbrauch

12.06.2028

2014

Gas

112

D

4

Personen

Zentralheizung

Einbauküche

Ja

2

13.500,00 EUR

Tiefgarage

Ja

01.04.2026

gepflegt

Lagebeschreibung

Alle Geschäfte des täglichen Bedarfs und die Frechener Fußgängerzone sind fußläufig ( 2 Gehminuten ) zu erreichen. Die Kölner City erreicht man schnell über die gute Straßenbahn- und Busanbindung als auch mit dem eigenen PKW. Der nächste Autobahnanschluß Kreuz- Köln- West liegt ca. 1 km entfernt mit Zufahrt auf die A 4 / A 1.

Die Stadt Frechen liegt direkt vor den Toren Kölns mit einer sehr guten Verkehrsanbindung an die Autobahn ( A 4 / A 1 ). Die Einwohnerzahl beträgt ca. 45.000 !
Der Köln-Bonner Flughafen befindet sich in ca.15 km und der Kölner Dom in ca. 15 km Entfernung.

Objektbeschreibung

Die angebotene Wohnung befindet sich im Dachgeschoss ( 4.OG mit Aufzug ) eines äußerst gepflegten Objektes in Frechen-City.

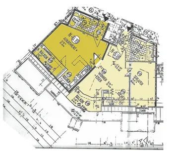
Die praktikabel aufgeteilte 3-Raum-Wohnung zeichnet sich dadurch aus, dass es sich rechtlich um 2 einzelne Wohnungen ( 50 + 35 m² ) handelt , die aktuell miteinander verbunden sind. Hierdurch ergeben sich sowohl von der späteren Nutzung als auch von der steuerlichen Betrachtung aus, interessante Möglichkeiten.

Die Beheizung erfolgt über eine Fußbodenheizung.

Die beiden hell gefliesten Badezimmer sind einmal mit einer Badewanne und einmal mit einer Dusche und jeweils einem Anschluss für die Waschmaschine ausgestattet.

Die Wohnung befindet sich in einem gepflegtem Zustand. Als Bodenbelag wurde in fast der ganzen Wohnung ein Fliesenboden verlegt., lediglich im Schlafraum wurde Parkett verlegt.

Die Wohnung besticht durch Ihre Helligkeit und die spannende Raumaufteilung.

Die helle Einbauküche - sowie alle anderen Möbel - verbleiben in der Wohnung. Zur Wohnung gehören noch 2 kleine Kellerräume sowie 2 Tiefgaragenstellplätze ( nicht im KP enthalten) .

Im Wohngeld ( € 349,00 + € 217,00 monatlich ) sind die Kosten für Heizung /Warm- und Kaltwasser/Abwasser/ Rücklagen/ Aufzug / Hausmeister etc. bereits enthalten. Lediglich die Grundsteuer sowie die persönlichen Stromkosten sind hier nicht berücksichtigt.

Um aufzuzeigen, wie die Wohnung nach einer möglichen Renovierung aussehen könnte, haben wir uns erlaubt einige Bilder durch KI - generiert beizufügen !

Ausstattung

Alle Ausstattungsmerkmale auf einen Blick:

- Fliesenboden mit Fußbodenheizung
- 1 x Wannenbad (+ 1 x Duschbad
- je TG- Stellplatz € 13.500 ,-- ( nicht im KP entalten)
- sehr gute Bahnanbindung
- Möbel verbleiben in der Wohnung
- eigene Wasseruhren zur genauen Verbrauchserfassung
- Fußbodenheizung in der gesamten Wohnung
- 2 Balkone

In den Hausgeldzahlungen sind unter anderem folgende Punkte enthalten:

- Warm- und Kaltwasser
- Heizung
- Treppenhausreinigung
- Pflege der Außenanlagen
- Winterdienst etc.
- Rücklagenbildung
etc.

Sonstiges

I-------------------------------------------------------------------------------------
Daten aus dem Energieausweis:

Energieausweis gültig bis: 27.06.2028
wesentlicher Energieträger: Gas
Energieverbrauchskennwert: 112 kWh/(m²*a)

---------------------------------------------------------------------------------------

Interresse ? Anruf genügt ! Tel: 022 34 / 9 53 17 - 25

www.ach-immobilien.de - Immobilienmakler seit 1953

Bilder

Außenansicht

Außenansicht

Wohnen/Küche 1 aktuell

Wohnen/Küche 1 aktuell

Wohnen/Küche 1 - (KI generiert)

Wohnen/Küche 1 - (KI generiert)

Blick in Wohnraum 1

Blick in Wohnraum 1

Küchenbereich

Küchenbereich

IMG_2401.jpeg

IMG_2401.jpeg

Essplatz 1 mit Blick

Essplatz 1 mit Blick

Balkon 1 - (KI generiert)

Balkon 1 - (KI generiert)

Schlafraum

Schlafraum

Eingangsbereich 1

Eingangsbereich 1

Wannenbad groß

Wannenbad groß

Wannenbad groß - (KI generiert)

Wannenbad groß - (KI generiert)

Eingang 2

Eingang 2

Wohnraum 2 aktuell

Wohnraum 2 aktuell

Wohnraum 2 - (KI generiert)

Wohnraum 2 - (KI generiert)

Duschbad

Duschbad

Wohnraum 2 Blickwinkel

Wohnraum 2 Blickwinkel

Balkon 2

Balkon 2

Grundriss Kö21

Grundriss Kö21