Immobilienangebote

Frechen: 2 Dachwohnungen in einer ! 50 + 35 m² ...

Die angebotene Wohnung befindet sich im Dachgeschoss ( 4.OG mit Aufzug ) eines äußerst gepflegten Objektes in Frechen-City. Die praktikabel aufgeteilte 3-Raum-Wohnung zeichnet sich dadurch aus, dass es sich [...]



 
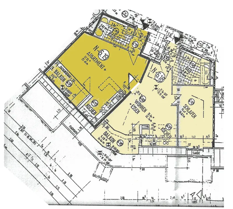
IMG_2386.jpegAußenansichtWohnen/Küche 1 aktuellWohnen/Küche 1 - (KI generiert)Blick in Wohnraum 1KüchenbereichIMG_2401.jpegEssplatz 1 mit BlickBalkon 1 - (KI generiert)SchlafraumEingangsbereich 1Wannenbad großWannenbad groß - (KI generiert)Eingang 2Wohnraum 2 aktuellWohnraum 2 - (KI generiert)DuschbadWohnraum 2 BlickwinkelBalkon 2Grundriss Kö21

Anfrage

Kontakt

Josef K. Ach
Immobilienmakler

Ihr Ansprechpartner

Holger Kümmel

02234 - 95317-25

Anfrage

 
 
 

Firmengruppe Ach
Internet: http://www.ach-immobilien.de
E-Mail: info@ach-immobilien.de